
摘 要:现代物流仓储系统的基础设备之一为货架,货架的风险来源于整个项目的规划、设计、制造、安装与运营五个阶段。本文介绍了货架项目的五个不同阶段,并分析了各阶段货架风险的来源以及为了降低风险而应采取的措施。针对货架在运营阶段的安全检测进行了详细论述,论述内容包括货架安全检测的法规要求、检测标准、检测频率、检测层级、检测内容与检测结果风险判定等方面。
货架用于存储货物与物品,是一种基础的仓储设备。物流业发展已经非常成熟并持续迅速发展,在当今社会的生产与生活中的作用不可替代。作为物流的节点性环节,仓储系统是现代物流业不可或缺的。随着土地必威betway88欢迎你的日益紧缺、劳动力成本的不断上升,现代物流仓储系统已向能够充分利用空间、有效促进货品间流动、大幅度提高工作效率,仓储所需要发挥的功能更加多样,呈现出高密集、高效率、自动化与智能化等特点。货架作为仓储系统的基础性设备,为仓储系统的成套设计奠定基础。高端物流地产、自有大型配送中心的主流化(仓库越来越高、项目越来越大)、三方物流模式的普遍化(效率越来越快)、货架材料的成本占比大幅提高(工艺、结构越来越重要),货架要满足以上特征需求的前提是安全。
货架项目周期可以分为规划、设计、制造、安装与运营五个阶段,主要涉及到货架供应商、搬运设备供应商与业主三方。货架安全贯穿整个项目周期,也即贯穿项目周期的五个阶段。
2.1 规划阶段
货架项目的规划阶段是作为仓库规划整体的一部分进行的,如图1所示。广义的货架项目规划阶段内容包括规划与布局、存储单元规格、容差与变形、加载循环设计、仓库条件与消防安全等内容。狭义的货架项目规划内容则指存储单元的净距、搬运设备运行空间与物流动线防护。规划阶段的风险主要体现在规划的合理性对后期阶段的影响。应针对规划的各项内容,进行合理的货架规划。合理的规划可以从源头上规避后期的风险,如果规划有问题,后期进行补救则成本较高或者效果不佳。

图1 理想仓库规划信息流
2.2 设计阶段
货架项目的设计特指结构设计,即货架在规划完成后,货架供应商按照业主所提供的货物荷重、地震荷载与搬运设备供应商提供的作用力等荷载信息,选择组成货架所有构件的材料、规格尺寸,根据相关货架设计规范,对货架在各种工况及荷载组合作用下的内力及位移进行计算分析,校核构件及连接节点承载力,验算结构及构件变形,确保货架结构满足承载力极限状态及正常使用极限状态要求的过程。
货架设计阶段的风险与货架相关方之间的信息沟通是否通畅、充分,货架结构设计是否严格按照标准执行相关联。货架设计人员在获得准确的荷载信息后,按照货架结构设计标准,通过有限元模型(见图2)进行内力分析,按照规范条款进行构件校核,出具结构计算书并审核,保证货架的承载与变形安全可靠。
中国的货架结构设计规范与标准[1]相对落后,目前主流的、发展相对成熟的货架结构设计标准有EN标准[2]、SEMA标准[3]、RMI标准[4]与AS标准[5]。所有货架设计标准均基于测试,即必须进行构件测试数据进行货架的结构计算与设计。

图2 货架结构分析有限元模型
2.3 制造阶段
在货架的制造阶段,风险来源主要是钢材材质、加工精度与防腐涂层三个方面。
钢材材质是否达到设计要求直接决定了货架能否完成既定的功能目标。对制造货架的原材料钢卷钢带等,应定期、分批进行抽样检测,以保证用料的准确。
货架构件的加工精度,对之后的货架安装有直接影响,如果加工精度不符合标准,那么后期的安装可能质量较差,导致货架的承载能力达不到设计的预期。对货架构件,应进行随机抽样检测,如有结果超标,应进行原因分析并采取措施。
货架的防腐涂层质量对货架的使用寿命有决定性的影响,防腐涂层不合格的货架,在货架构件损坏之前就已经因为腐蚀导致承载力严重折减而不能继续使用。因此对货架涂层应进行涂层的厚度检测、硬度检测与附着力检测。
2.4 安装阶段
货架在安装阶段的风险来源主要是安装精度是否达到设计要求。货架在设计阶段是基于一定的安装精度进行的选材设计计算,因此货架的安装精度至少要达到设计假定水准,才能保证货架的承载力能与理论值相符。
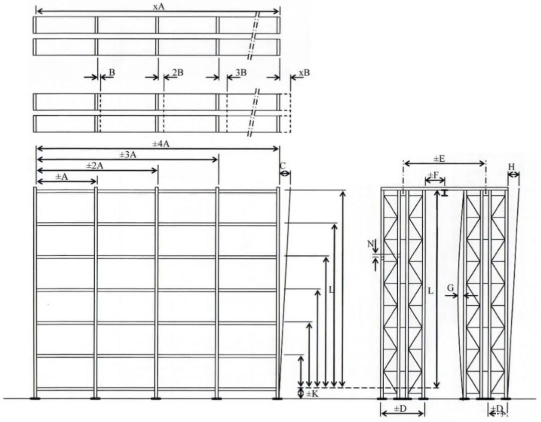
货架在安装完成后正式放货承载之前,应由业主会同设计、安装施工、货架供应商及第三方检测单位等,对该项目进行完工验收检测,确定安装精度与质量情况。检测参数主要包括立柱垂直度、横梁水平度、水平与竖向累计偏差等,如图3所示。如不符合标准,应分析原因,并进行调整达到精度标准要求后再投入使用。

图3 货架安装参数示意图[3]
2.5 运营阶段
运营阶段的风险来源主要为:
(1)搬运设备的使用,包括车与人两方面;
(2)未经授权的结构变动,包括移库、横梁调整等;
(3)使用条件的改变,包括环境、存储单元、搬运设备和人员等;
(4)地面的沉降;
(5)正常的使用磨损,可能涉及到疲劳问题;
(6)规划、设计、制造、安装四个阶段的不足。
货架投入运营后,相应的责任就由供应商转移到业主。业主首先应给不同经验水平的仓储货架相关人员培训其完成安全运维必需的思维认知、基本知识和技能。用户应指定存储设备的安全负责人并将其姓名公布给仓库员工。安全负责人应接受指导,负责管理存储设备、联系供应商及安排存储设备安全使用培训。
其次,应定期对货架进行检测,及时发现货架安全隐患并采取对应的措施。安全负责人应基于安全评估,了解仓库操作的本质以及相应的风险,并且采取指导说明或警示牌等预防措施降低风险。
3.1 法规要求
英国对货架安全检测的法律规定是最为完善的。英国健康与安全法案规定了有关雇主责任和雇员责任条款,工作健康与安全管理条例关于风险评估和技能训练做出了规定,工作设备使用条例要求对工作设备进行维护与检测。在英国,HSE是负责工作环境健康与安全的政府机构,HSE建议仓库每年至少由SEMA认证的货架检测工程师进行一次专家检测。HSE同时建议员工自行定期检查,虽然没有明确检查的频率,但是如果仓库员工接受过SEMA认证的货架检测工程师的培训,那么日常检测则会很容易完成。检测应按照SEMA的货架检测指南完成。检测频率取决于现场的很多因素,但是第一次检测一般在安装完成投入使用之后6个月进行,之后最长12个月要进行一次检测。所有检测均应记录。
美国的OSHA是美国负责工作环境安全的政府机构,与英国的HSE有些类似。两者在货架检测方面不同。HSE非常明确地规定了货架检测涉及到的事项,但是OSHA却没有。在OSHA2002发布的物料搬运与存储文件中,没有提到货架检测。OSHA建议仓库员工定期进行检测,但是没有涉及专业的货架检测。由于OSHA的含混不清,建议企业确保其货架能得到专业检测,员工也应懂得如何进行货架检测。
澳大利亚政府关于货架安全检测的规定因州而异,其中维多利亚州的货架安全检测规定与英国的最为类似。Work Safe Victoria建议每6到12个月进行一次货架检测。同时与HSE非常像的是,建议检测由“技术胜任”的人员完成。并且也采用了交通信号灯体系来进行安全风险分级。
加拿大的货架检测法规在不同省各不相同。在安大略省,仓库安全检测由劳动部进行,劳动部希望仓库员工接受培训以能承担货架日常检测的任务。该体系着重于对员工的货架安全检测培训。
在中国,根据《劳动法》与《安全生产法》,为员工提供安全的工作环境是雇主的责任。但是没有任何法律法规明确规定,货架必须定期进行检测,否则就违反《劳动法》与《安全生产法》。即目前货架检测都是非强制性的。
3.2 检测标准
主要的货架检测标准如下:
(1)欧洲:EN15635-2008钢货架静力体系-存储设备的使用与维护[6] 。
(2)英国:Guideline No 6 -货架检测指南[7] 。
(3)美国:RMI 货架损坏的修复/更换与评估指南[8] 。
(4)澳大利亚:AS 4084-2012. 钢货架标准[5] 。
(5)中国:中国的货架检测标准正在制定中。
3.3 货架检测频率
货架的检测频率对不同情况来说不是固定的,确定货架的检测频率时应考虑以下因素:
(1)仓库内betway必威入口的活跃水平;
(2)搬运设备的种类与质量;
(3)叉车操作人员的数量与操作技术水平;
(4)货架类型与尺寸型号;
(5)货架的损坏水平;
(6)地坪的类型与状况;
(7)工作环境温度是常温、冷藏还是冷冻。
检测的频率与程度取决于具体现场的一系列因素,应由安全负责人结合以上仓库的具体情况确定。
3.4 检测层级
检测包含三种不同层级的检测[7]。
(1)即时检测
所有的设备操作人员(比如叉车&堆垛车操作工、拣选人员)即时向货架安全负责人报告所有损坏构件及涉及区域,针对报告内容采取措施并建立程序记录在档。应鼓励仓库所有员工在发现损坏时立即报告。
(2)定期检测
货架安全负责人应确保每周(或根据仓库运行情况进行风险评估后确定间隔时间)进行检测并记录,应由培训合格的人员进行定期检测。
(3)年度检测
货架投入使用后,由业主根据法律法规、标准规范和实际需求,委托第三方检测单位,由有资格的专业检测人员每年对货架的使用状态进行全面检验,取得安全风险资料、数据和凭证。专家检测成果物为记录在档的检测报告,鉴别货架损坏并针对仓库其他活动提供指导与建议。专家检测应由技术上胜任的人员进行,推荐SEMA认证货架检测工程师(SARI)。
3.5 检测内容
在货架运营阶段,货架检测内容应包括以下内容:
1)货架立柱整体垂直度;
2)承载梁弯曲变形(挠度);
3)地坪螺栓拧紧力矩;
4)普通组装螺栓紧固性;
5)立柱损坏残余变形;
6)横斜撑杆损坏残余变形;
7)货架其他构件损坏;
8)货架存储单元净距;
9)货架结构布置变动情况;
10)货架安全件设置;
12)物流动线防护设置。
所有损坏或其他安全问题应保持记录。
3.6 检测结果风险判定
针对以上确定的检测内容,每一项都应根据可能造成的后果严重性进行判定并划分成如下三个不同的风险等级[6]之一。不同的风险等级应采取不同的措施。
(1)可接受损坏(绿色级别)
当损坏水平不高,比如没有超过本标准规定的限值时,货架可认为是满足正常使用要求的并且不需要减小单元荷重或立即卸载。此为绿色级别损坏。应制定构件损坏记录的方法。应制定方法,比如在构件上粘贴标明日期的有色标签,以表明这些构件已经检测且在下次重新检测与评估之前货架能继续使用。超过绿色级别的损坏应视为危险性或严重性损坏,会给货架安全带来风险。
(2)危险性损坏(橙色级别)
当损坏水平已影响到结构承载,比如为本标准规定的限值的1.0~2.0倍时,损坏的构件应明确标示出来并进行隔离,直到完成补救性工作后才能重新承载。如果在四周内无法完成补救,损坏级别应重新划分为严重性损坏(红色级别)。应制定隔离损坏构件的方法以确保在必要的补救工作完成及设备检验安全之前,这些构件不会重新投入使用。例如,可以粘贴标明日期的有色标签标示构件在修复前货架不能使用。
(3)严重性损坏(红色级别)
当损坏水平已严重危害结构安全,比如超过本标准规定的限值的2.0倍时,损坏的构件及相邻的部分构件应立即卸载并隔离,直到完成补救性工作并验证安全后才能重新使用。应制定隔离货架区域的方法以确保在修复工作完成之前不会重新投入使用。例如,将损坏的某跨货架立即卸载,并用绳索隔离禁止继续使用。任何修复性工作应咨询货架供应商或者有资质的结构工程师,补救工作一般会涉及到构件的更换。
以上风险等级判定整理成流程如图4所示。

图4 风险等级划分流程图[6]
货架项目的风险贯穿于项目的整个阶段。在交付前的阶段,货架应严格按照标准进行规划、设计、制造与安装。安装完工验收通过并交付后,货架在运营阶段应落实即时检测、定期检测与年度检测三个不同层级的检测机制。针对检测发现的问题进行风险等级划分,根据风险等级不同采取相应的措施以降低货架风险,保证货架安全。
[1] 中国工程建设标准化协会,钢货架结构设计规范(CECS 23:90),1990.
[2] CEN,Steel static storage systems-Adjustable pallet racking systems-Principles for structural design (EN 15512),2009.
[3] SEMA,Code of Practice for the Design of Adjustable Pallet Racking,2014.
[4] ANSI MH16.1,Specification for the Design,Testing and Utilization of Industrial Steel Storage Racks,2012.
[5] AS 4084-2012,Steel Storage Racking,2012.
[6] CEN,Steel static storage systems - Application and maintenance of storage equipment (EN 15635),2008.
[7] SEMA,Guideline No 6 - Guide to the Conduct of Pallet Racking and Shelving Surveys,2017.
[8] RMI,Guideline for the Assessment and Repair or Replacement of Damaged Rack,2014.
本文已全文发表在《石油石化物资采购》2019年第32期。
稳图提供自动化立体仓库高层货架、库架一体货架以及各种平库货架(包括且不限于横梁式、穿梭车式、悬臂式、后推式、重力式、阁楼式与钢平台等)的结构设计、施工质量检测与使用维护检测等一系列专业技术必威betway西汉姆联官网。期待与您交流。
本站的原创文章,请转载时务必注明出处:稳图WESAFE,不尊重原创的行为我们将追究责任。

